Highlights
Available surface
Optionable turn-key offices
Give clients a warm welcome
Multiple rentable meeting rooms
24-hour access to offices
Super fast fibre optic internet
Scale-up as your business grows
Why Flexas.com
Personalized advice
Free of charge
Easy and quick
About the office space on Karl Weisbardstraat 181-201
Renting an office in Rotterdam? This brand new office is located at Karl Weisbardstraat 181 - 201. The location will open its doors to the first tenants in March 2021. The design of the building is based on the cosmopolitan character of New York, including the use of lofts as office space. The district consists of several residential and office buildings, each with its own unique style and character. The location opposite the Erasmus MC makes this location perfect for companies in the medical sector. Of course, this location is also more than suitable for companies from other sectors that are enthusiastic about the modern architecture. An interesting aspect for medical-related companies is that, thanks to the construction of the 'Daniel den Hoed bridge', you can be in the largest medical centre in the Netherlands in no time at all. This offers a great opportunity to network and share knowledge with companies in the sector.
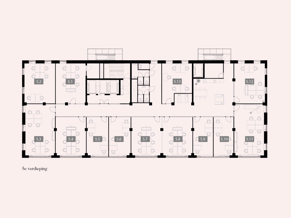
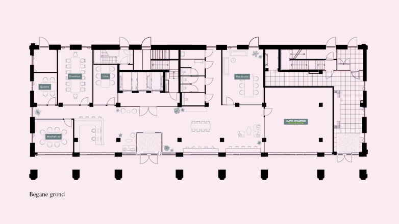
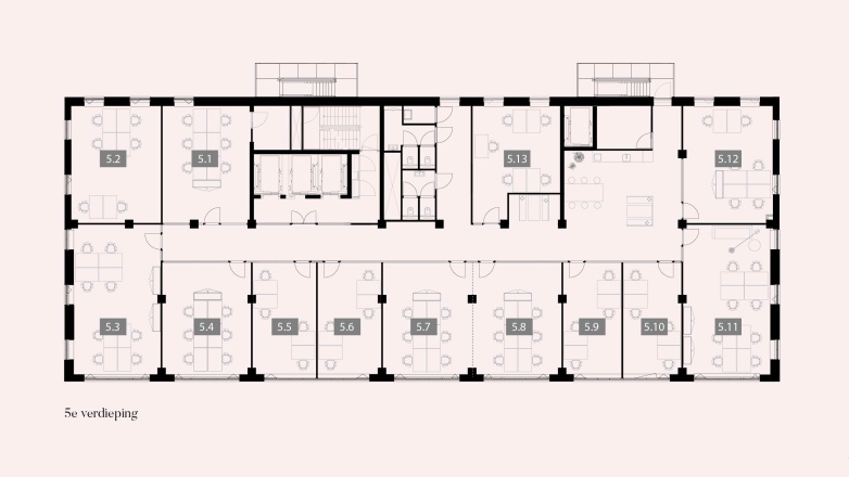
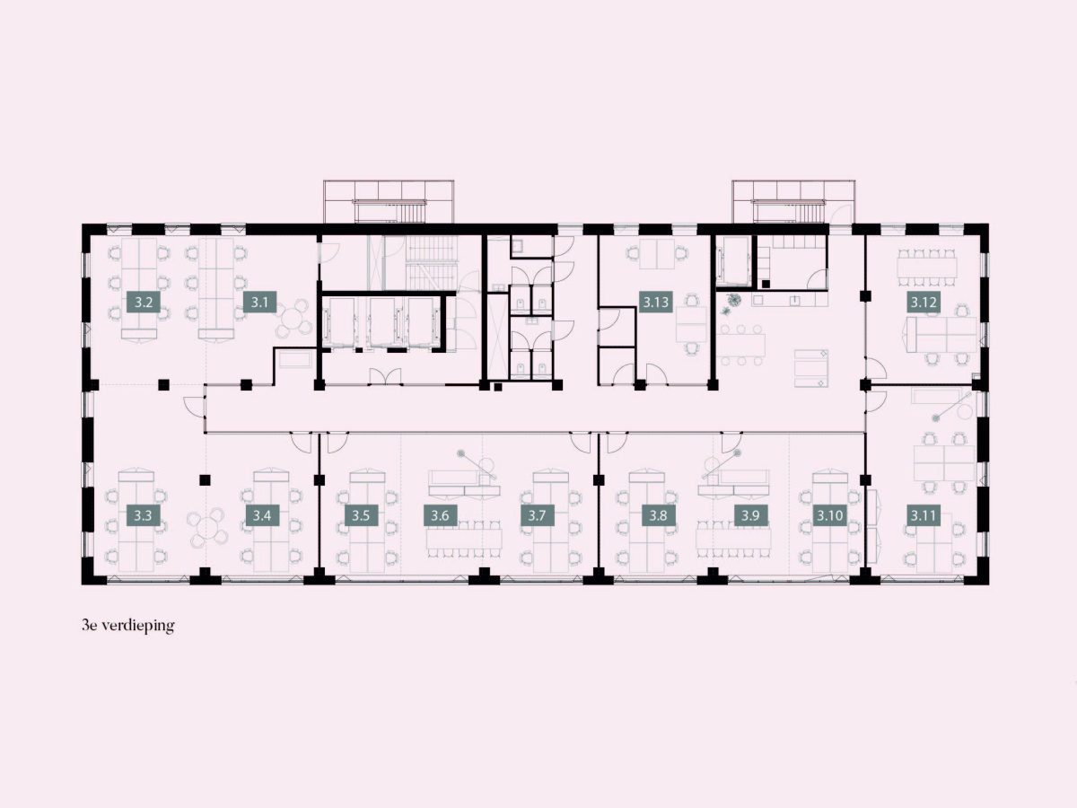
Over 300 lofts are available at this location, along with approximately 7.000 square metres of office space. Lofts can be rented from as little as 42 square metres and office space from as little as 20 square metres; these are enclosed spaces. In terms of facilities and services, this location is very favourable. There is a catering concept on site where you can go for a delicious lunch. There are meeting rooms available for meetings with colleagues or customers. There are also many common areas to relax or to meet other tenants from the building. For sports enthusiasts, there is even a gym available.
Location and accessibility
Nearest public transport
Parking
Address
Karl Weisbardstraat 181-201 3015 GG Rotterdam
About the area
This building is located in Rotterdam city centre and is surrounded by squares with vegetation. What makes this area attractive is its location, which is very central. In the vicinity of the location, you can take a stroll through the Museumpark or visit one of the surrounding restaurants/cafés. You can also easily reach the shopping street of Rotterdam, where you can find a multitude of clothing shops and boutiques. The location is within walking distance of public transport and the car can be parked underneath the building.

What tenants and visitors say about this office
Add new comments